Дом по адресу Краснодар, , за 2850000 р.

Адрес Краснодар
Цена 2 850 000 р.
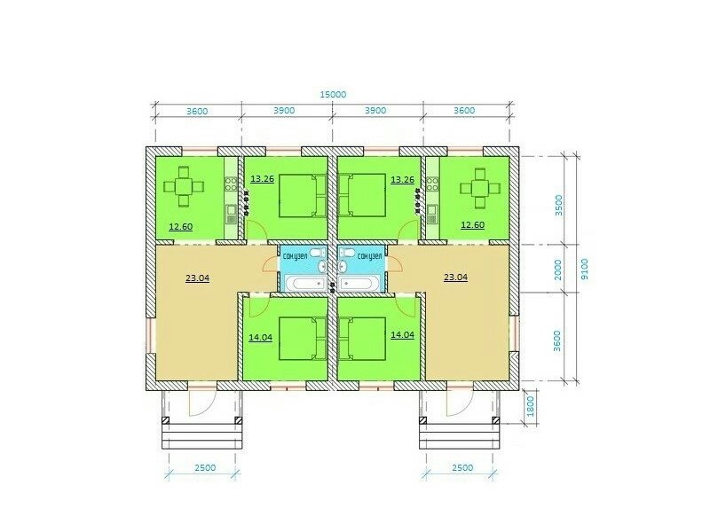
Площадь дома 85 м2, участка 3 м2
Кол-во комнат 3
Дуплекс находится х.Ленина. Готовность апрель-май. 3 сотки земли. Пред чистовая отделка. Разводка по электричеству с выводами под розетки и выключатели. 2-х контурный газовый котел. Свет и вода заведены в дом. Газ подключение отдельно.Пока его нет.
Объявление № 8864971
Дата подачи:
21 июля 2017 г. 23:41
Дата обновления:
21 июля 2017 г. 23:41
Просмотров 240 Хотите продать быстрее?

Продавец
Иван
email: info@key-house.net
Показать номер телефона
Пожаловаться
Комментарии:
Добавить